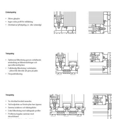
Val av Glas
Beroende på komfort och energikrav finns flera alternativ, de profiler som rymmer 3-glas isolerrutor ger förstås mest frihet i glaslösningen. Det finns flera olika glas för funktioner som t.ex. personsäkerhet, inbrottsskydd, brandskydd, ljudreduktion, smutsavvisning, solskydd och energibesparing. Det går även att screentrycka på glas i olika mönster eller använda färgat glas.
Viktigt att tänka på
Glasytor som är oskyddade och placerade så att personer kan komma i kontakt med dem, ska utformas så att risken för personskador begränsas. De glasytor som avses skall dimensioneras för dynamisk påverkan av en människa. Beakta gällande normer och krav.
Ytbehandling och färg
Våra profiler kan anodiseras i 8 standardkulörer eller pulverlackeras enligt NCS-S och RAL-skalorna. Du kan dessutom välja olika kulör på insida och utsida. Sapa förfogar över ett brett ytbehandlingsprogram. Våra aluminiumprofiler till fasader, glastak, fönster, dörrar och solskydd kan anodiseras eller lackeras. Färgmöjligheterna är många vid anodisering och näst intill obegränsade vid lackering. Utseendet och ytkvaliteten hos den strängpressade aluminiumprofilen är helt tillfredställande för många användnings-områden redan innan profilen ytbehandlas.
Tack vare den goda beständigheten mot korrosion behöver man sällan ytbehandla enbart för att ge korrosionsskydd. Däremot ytbehandlar vi profilerna för att byggsystemprodukterna skall få önskad kulör och finish.
Anodisering
Anodisering är den starkaste ytbehandling som finns för aluminiumprofiler. Det är en elektrolytisk process i vilken ett oxidskikt byggs upp. Skiktet förstärker ytan som blir motståndskraftig mot mekaniskt slitage, UV-ljus och påverkan från aggressiva miljöer. Anodiseringen ger beständighet i färg och glans, och oxidskiktet är 20my för användning utomhus. (Skikttjocklek klass AA 20).
Den vanligaste formen av anodisering är naturanodisering. Processen består vanligen av fyra steg:
• förbehandling
• själva anodiseringen
• infärgning (i förekommande fall)
• eftertätning.
Lackering
Pulverlackering är idag den klart dominerande lackeringsmetoden och erbjuder ett nästan obegränsat färgval enligt RAL- och NCS-S-skalorna. Pulverbeläggning görs med polyesterpulver, med en skikttjocklek på ca. 60my.
Färgprogram lackering
Sapa arbetar med många populära lacktyper förutom traditionella pulverbeläggningar, d.v.s. strukturlack, metallisk och klar lack. Polyesterpulver används för pulverbeläggning. Med färg finns det praktiskt taget inga begränsningar för färg. Vi kan erbjuda de färger som finns i NCS-S- och RAL-skalorna.
Tabellbeskrivning
U-värdet förändras beroende på valet av glas och storleken på produkten. Lågt U-värde = bättre isolering, släpper ut mindre energi.
* Våra beräkningar baseras på isolerrutor med energisparglas: tvåglas Ug = 1,0 W/m2K och treglas Ug = 0,60 W/m2K, vid maxmått på hela produkten om inget annat anges. 1086 PX är beräknad på treglas Ug = 0,50 W/m2K. Fönster 1086 SX och 1086 PX är beräknad vid standardiserat mått 1230 x 1480 mm. I våra fönstersystem ingår även fönsterdörrar. Inbrottskyddande konstruktioner har glas, lås och beslagning för respektive klass. Det är viktigt att tidigt bestämma vilken prestanda du behöver.























